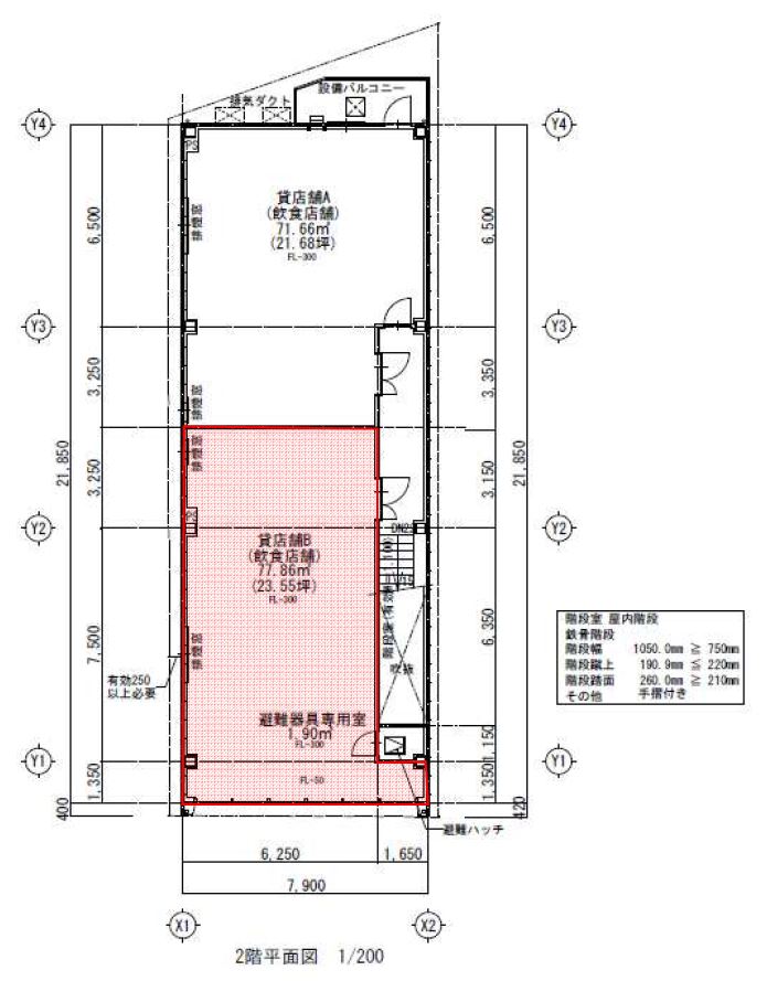
(仮称)名駅四丁目店舗


地下鉄桜通線「国際センター」駅徒歩5分、
JR・地下鉄各線「名古屋」駅徒歩7分という好立地♪
路面側は全面ガラス張り、大きなサインスペースで視認性良好です☆
☆「貸店舗.名古屋」☆

名古屋の貸店舗情報はおまかせください!
スタッフのおすすめ物件や、最新情報をお届けしています♪
☆「貸店舗.名古屋NEWS」☆

名古屋の貸店舗情報をLINEで配信中!
お友だち登録お願いします♪
(仮称)名駅四丁目店舗


地下鉄桜通線「国際センター」駅徒歩5分、
JR・地下鉄各線「名古屋」駅徒歩7分という好立地♪
路面側は全面ガラス張り、大きなサインスペースで視認性良好です☆
☆「貸店舗.名古屋」☆

名古屋の貸店舗情報はおまかせください!
スタッフのおすすめ物件や、最新情報をお届けしています♪
☆「貸店舗.名古屋NEWS」☆

名古屋の貸店舗情報をLINEで配信中!
お友だち登録お願いします♪
物件資料の作成やメール・LINEの情報配信を行っています。 名古屋で物件をお探しの際は是非ご活用下さい。
オルバースビル名古屋 中村区名駅南1丁目! 地下鉄・JR・名鉄線各線「名古屋」駅から徒歩4分のテナントビルです! 【☞ …
パークフロントサカエビル 一棟、オフィスビルとして利用されていましたが、 外 …
グリーンポートビル 地下鉄名城線・桜通線「久屋大通」駅から徒歩4分の立地です! 1フロア1テナントのため、他テナントに …